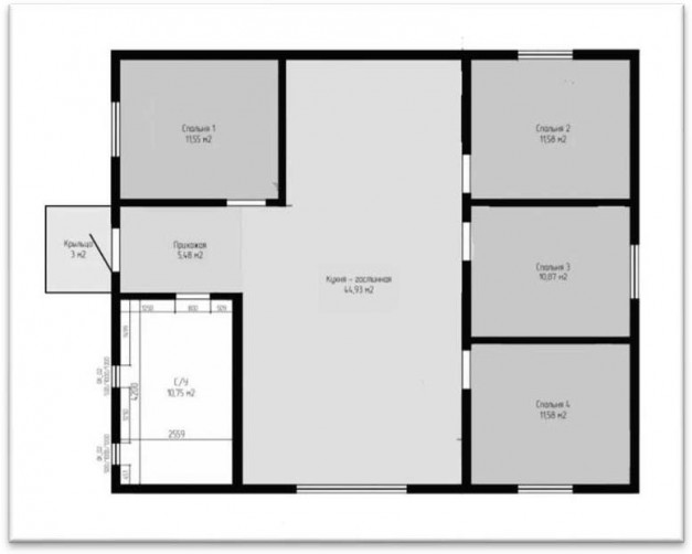
Массив 122 м² - это простор и комфорт для большой семьи Просторное жилище площадью 122 квадратных метра — это идеальное решение для тех, кто ценит комфорт и функциональность в каждом уголке дома. Продуманная планировка позволяет создать уютное пространство для всей семьи.
Дом 122 м² — это гармоничное сочетание практичности, комфорта и современного дизайна, создающее идеальные условия для счастливой жизни вашей семьи. Здесь каждый день будет наполнен уютом и теплом домашнего очага.
Комплектации:
ДОМОКОМПЛЕКТ 1 920 000 р.
СТАНДАРТ 5 500 000 р.
КОМФОРТ 6 500 000 р.
КОМФОРТ+ 8 500 000 р.
Выбор местоположения
Мы свяжемся с Вами в течение дня.