Барн 69 №706

Цена строительства от 4 500 000 ₽* * Стоимость не является окончательной
Заявка на консультацию
  • Общая площадь 72 м2
  • Длина 13 м
  • Ширина 7.6 м
  • Материал стен Каркас
  • Количество этажей 1
  • Подвал Нет
  • Мансарда без мансарды
  • Гараж Нет
  • Терраса Да
  • Проживание Круглогодичное
  • Количество комнат 3
  • Количество спален 2
  • Количество санузлов 1
  • Вид проекта дом
  • Застройщик RICHSPACE
  • Архитектурный стиль Барнхаус
  • Отделка фасада Вагонка
  • Крыша Двускатная
  • Можно купить домокомплект Нет
  • Модульный тип строения Нет
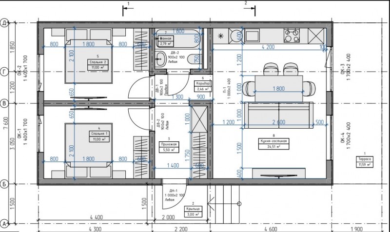
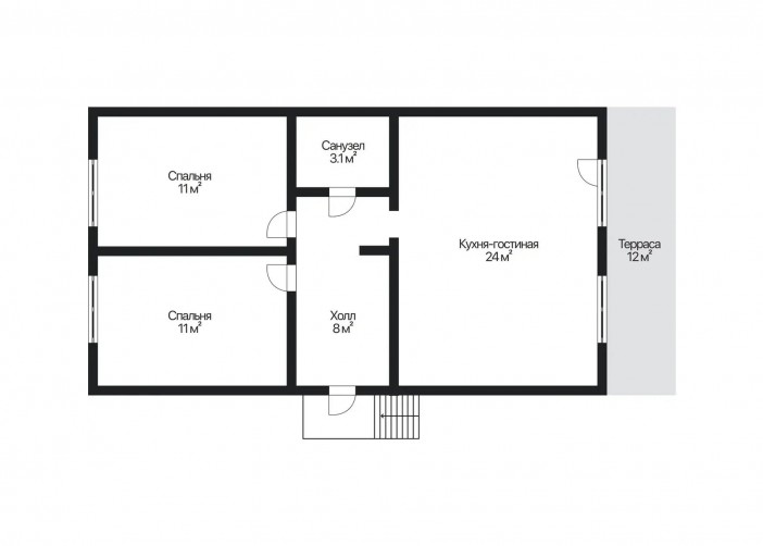
Планировки
Описание проекта

Кровля над террасой +300 т.р.

  • Терраса 11.59
  • Крыльцо 3
  • Прихожая 5.5
  • Спальня № 1, 11
  • Спальня № 2, 11
  • Коридор 2.46
  • Ванная 2.79
  • Кухня-гостиная 24.51

Общая площадь 71.85.

Дом с готовыми инженерными системами «под ключ». Вам останется только выполнить чистовую отделку!

Мы позаботились о самом главном, чтобы ваше новоселье было по-настоящему комфортным. В стоимость дома уже входит полный комплект современных и надежных инженерных систем:

· ✅ Канализация: Вы получаете готовую систему сточных вод на 6.3 м³, что гарантирует эффективное использование для всей семьи.

· ✅ Эффективная система отопления:

  · Теплый пол повсюду: Равномерное и комфортное тепло по всему дому обеспечивают водяные теплые полы, встроенные в стяжку.

  · Надежный источник тепла: Установлен мощный Электра котёл на 16 кВт.

  · Забота о будущем: Заранее подведены все коммуникации для легкого перехода на газовое отопление при возможности.

· ✅ Полностью готовая электрика:

  · Электрощит установлен, вся проводка разведена и выведены подрозетники для будущих розеток и выключателей.

  · Для вашей кухни уже проложен отдельный силовой кабель для мощной плиты или духового шкафа.

· ✅ Комфортный микроклимат: В санузлах смонтированы вытяжки для поддержания оптимальной влажности.

· ✅ Готовые подключения для сантехники: Все трубы холодного и горячего водоснабжения, а также канализации подведены к местам установки сантехники на кухне и в санузлах.

Заселяйтесь и наслаждайтесь жизнью без лишних хлопот!

Вас может заинтересовать
Вас может заинтересовать

Выбор местоположения

Задать вопрос / написать нам

E-mail: domgis@mail.ru

Мы свяжемся с Вами в течение дня.

Тех. поддержка
Предмет обращения:
Тукущая страница

Мы свяжемся с Вами в течение дня.

Обратный звонок
Обратный звонок
Выберите ваш город
Пожаловаться

Объявление опубликовано.
Изменения сохранены

Период публикации - бессрочный, при условии подтверждения актуальности каждые 50 дней. Уведомления будут отправляться на Вашу электронную почту.

Выберите причину снятия с публикации

Снятые с публикации объявления не участвуют в поиске и недоступны для подробного просмотра.

Для повторной публикации нажмите «Вернуть в публикацию»